传力接头系列
名称:VSSJAFC型可拆式双法兰传力接头
VSSJAFC型可拆式双法兰传力接头连接方式:法兰式,
VSSJAFC型可拆式双法兰传力接头工作压力:0.6-1.6MPA
VSSJAFC型可拆式双法兰传力接头公称通经:65-3200mm
VSSJAFC型可拆式双法兰传力接头使用介质:水、污水
VSSJAFC型可拆式双法兰传力接头使用温度:常温
VSSJAFC型可拆式双法兰传力接头密封材料:NBR,
VSSJAFC型可拆式双法兰传力接头制造标准:GB/T12465-2007
VSSJAFC型可拆式双法兰传力接头
性能特点:
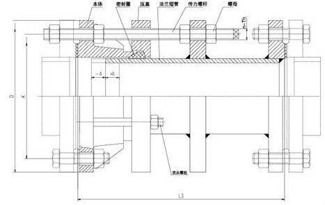
松套传力接头是在法兰松套补偿接头的基础上增设法兰短管及传力螺杆而成,次类型的补偿接头与松套补偿接头和松套限位补偿接头不同的是它的补偿量是指在安装及拆卸过程中的调节量,一旦将所有的螺母拧紧,它是刚性连接的,可以传递轴心力,从而保护阀门、泵等设备。
VSSJAFC型可拆式双法兰传力接头是有松套伸缩接头和短管法兰、传力螺杆等构件组成,它能传递被连接件的压力推力(盲板力)和补偿管路误差,不能吸收轴向位移。重要用于泵、阀门、管路等附件的松套连接。
适用范围
VSSJAFC型可拆式双法兰传力接头适用于输送海水、淡水、冷热水、饮用水、生活污水、原油、燃油、润滑油、成品油、空气、煤气、温度不高于250度的蒸汽和颗粒粉状等介质。
安装简要说明:
VSSJAFC型可拆式双法兰传力接头适用于两边均与法兰连接的管路中,安装时调节产品两端与法兰的安装长度,对角依次均匀拧紧压盖螺栓,使其成为一个整体,并有一定的位移量,方便安装维修时,根据现场尺寸进行调整。在工作时可以把轴向推力传递至正个管道。

PN0.6MPa的可拆式双法兰传力接头的基本尺寸
公称通经
DN管子外径
Dw接尺寸
总长
L安装尺寸L1
伸缩量
重量/kg
法兰外径
D螺栓孔中心
圆直径D1螺栓孔
n/个
do
min
max
65
76
160
130
4
14
450
420
180
40
17.9
80
89
190
150
18
460
20.6
100
114
210
170
28.4
125
140
240
200
8
18
37.1
150
168
265
225
46.2
200
219
320
280
57.4
250
273
375
335
12
76.3
300
325
440
395
22
485
445
395
50
94.6
350
377
490
445
122.7
400
426
540
495
16
141.1
450
480
595
550
158.1
500
530
645
600
20
186.2
600
630
755
705
26
500
465
415
261.9
700
720
860
810
24
324.5
800
820
975
920
30
680
630
570
60
516.7
900
920
1075
1020
570.3
1000
1020
1175
1120
28
658.8
1200
1220
1405
1340
32
33
750
680
620
984.4
1400
1420
1630
1560
36
36
1273.1
1600
1620
1830
1760
40
770
700
640
1767.2
1800
1820
2045
1970
44
39
1981.7
2000
2020
2265
2180
48
42
830
730
670
2483.4
2200
2220
2475
2390
52
860
760
700
3086.3
2400
2420
2685
2600
56
3456.4
2600
2620
2905
2810
60
48
1000
880
800
80
3844.3
2800
2820
3115
3020
64
4307.8
3000
3020
3315
3220
68
4738.1
3200
3220
3525
3430
72
5134.7
PN1.0MPa的可拆式双法兰传力接头的基本尺寸
| 公称通经 DN |
管子外径 Dw |
法兰连接尺寸 | 总长 L |
安装尺寸L1 | 伸缩量 | 重量/kg | ||||
| 法兰外径D | 螺栓孔中心 圆直径D1 |
螺栓孔 | ||||||||
| n/个 | do | min | max | |||||||
| 65 | 76 | 185 | 145 | 4 | 18 | 460 | 420 | 380 | 40 | 19.9 |
| 80 | 89 | 200 | 160 | 8 | 22.9 | |||||
| 100 | 114 | 220 | 180 | 31.6 | ||||||
| 125 | 140 | 250 | 21O | 41.2 | ||||||
| 150 | 168 | 285 | 240 | 22 | 51.2 | |||||
| 200 | 219 | 340 | 295 | 63.8 | ||||||
| 250 | 273 | 395 | 350 | 12 | 84.8 | |||||
| 300 | 325 | 445 | 400 | 485 | 445 | 395 | 50 | 105.1 | ||
| 350 | 377 | 505 | 460 | 136.3 | ||||||
| 400 | 426 | 565 | 515 | 16 | 26 | 495 | 157.3 | |||
| 450 | 480 | 615 | 565 | 175.7 | ||||||
| 500 | 530 | 670 | 620 | 20 | 206.9 | |||||
| 600 | 630 | 780 | 725 | 30 | 510 | 465 | 415 | 291.1 | ||
| 700 | 720 | 895 | 840 | 24 | 361.1 | |||||
| 800 | 820 | 1015 | 950 | 33 | 690 | 630 | 570 | 60 | 574.2 | |
| 900 | 920 | 1115 | 1050 | 28 | 633.7 | |||||
| 1000 | 1020 | 1230 | 1160 | 36 | 732.2 | |||||
| 1200 | 1220 | 1455 | 1380 | 32 | 39 | 740 | 680 | 620 | 1036.2 | |
| 1400 | 1420 | 1675 | 1590 | 36 | 42 | 1340.9 | ||||
| 1600 | 1620 | 1915 | 1820 | 40 | 48 | 800 | 700 | 640 | 1860.0 | |
| 1800 | 1820 | 2115 | 2020 | 44 | 2086.1 | |||||
| 2000 | 2020 | 2325 | 2230 | 48 | 840 | 730 | 670 | 2614.3 | ||
| 2200 | 2220 | 2550 | 2440 | 52 | 56 | 880 | 760 | 700 | 3249.2 | |
| 2400 | 2420 | 2760 | 2650 | 56 | 3638.3 | |||||
| 2600 | 2620 | 2960 | 2850 | 60 | 1030 | 880 | 800 | 80 | 4046.7 | |
| 2800 | 2820 | 3180 | 3070 | 64 | 4534.6 | |||||
| 3000 | 3020 | 3405 | 3290 | 68 | 60 | 4987.4 | ||||
上一篇:【VSSJAF型双法兰传力接头】
下一篇:【C2F/VSSJAF型双法兰传力接头】
关键字:橡胶接头、防水套管、传力接头、伸缩接头、橡胶止回阀、波纹补偿器
巩义市昌旺给排水材料厂 版权所有 地 址:河南省洛阳市西工区唐宫西路44号置隆花园10楼2单元1801室 管理入口
豫ICP备16036159号-4
电 话:15037198065 (微信同号) Q Q:2914005008
邮 箱:2914005008@qq.com 2914005008(在线洽谈)
